Til leje her og nu!
Sundvænget 4 i Egernsund
Dette er en Her-og-nu bolig
Vores Her-og-nu boliger har ingen venteliste - du kan søge dem med det samme, og det betyder ikke noget, om du først lige er blevet medlem af B42. Her-og-nu boligerne bliver tildelt efter princippet om først-til-mølle: Den, der kontakter os først, bliver den nye lejer, uanset anciennitet.
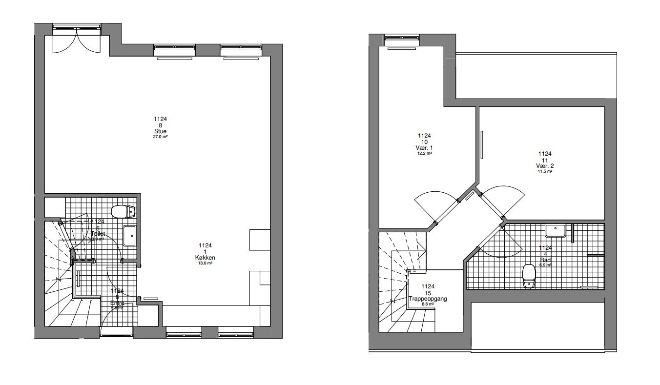
3-værelses rækkehus i 2 plan - midt i Egernsund
Rækkehuset er i to plan og har en lille have. I stueplan finder du en stor, lys stue i åben forbindelse med køkkenet samt et toilet. På 1. salen er er to værelser og et badeværelse.
Hvis du ønsker at søge denne bolig, kan du kontakte vores Udlejning på tlf.: 74 42 57 95 (tast 1).
| Areal (brutto) | 105,6 m2 |
| Værelser | 3 |
| Have | Ja |
| Husleje* | 7.668,40 kr. |
| Beboerindskud | 28.524,00 kr. |
| Ledig fra | 24-02-2026 |
| Husdyr | Husdyr er tilladt, dog max en kat eller hund. |
*Huslejen er uden forbrugsafgifter (varme, el og vand)
Vær opmærksom på, at du - hvis du ønsker denne bolig - vil blive opkrævet en straksbetaling.
Straksbetalingen består af: Beboerindskud + første måneds husleje og acontobeløb til forbrug.
Boligen ligger i afdeling 80.
Plantegning fra Sundvænget 4
Har kan du se plantegning samt billeder af bygningen - billeder fra rækkehuset kommer snart: