Studiebolig til leje her og nu!
Studiebolig på Østerballe i Skelde, Broager
Dette er en studiebolig - til leje Her-og-nu
Vores Her-og-nu studieboliger har ingen venteliste - du kan søge dem med det samme, og boligerne bliver tildelt efter princippet om først-til-mølle
VIGTIGT - du kan kun søge vores studieboliger, hvis du er studerende!
1-værelses studiebolig
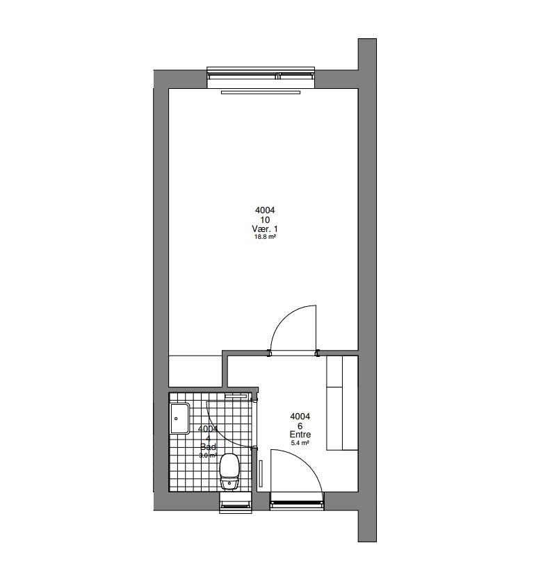
Studieboligen på Østerballe i Skelde på 33 m2 og indrettet med stue/værelse samt køkken og badeværelse.
For at søge studieboligen skal du kunne dokumentere, at du er studerende.Hvis du ønsker at søge studieboligen, kan du kontakte vores Udlejning på tlf.: 74 42 57 95 (tast 1).
| Areal (brutto) | 33 m2 |
| Værelser | 1 |
| Husleje* | 3.156,78 kr. |
| Beboerindskud | 6.600,00 kr. |
| Ledig fra | 01-04-2026 |
| Husdyr | Husdyr er ikke tilladt i studieboligerne |
*Huslejen er uden forbrugsafgifter (varme, el og vand)
Vær opmærksom på, at du - hvis du ønsker denne bolig - vil blive opkrævet en straksbetaling.
Straksbetalingen består af: Beboerindskud + første måneds husleje og acontobeløb til forbrug.
Boligen ligger i afdeling 74.
Plantegning fra boligen og billeder fra Østerballe
Har kan du se plantegning, billeder fra Østerballe - og billeder af studieboligen kommer snarest ...