Studiebolig til leje her og nu!
Højmarken 22, 6310 Broager - Studiebolig
Dette er en studiebolig - til leje Her-og-nu
Vores Her-og-nu studieboliger har ingen venteliste - du kan søge dem med det samme, og boligerne bliver tildelt efter princippet om først-til-mølle
VIGTIGT - du kan kun søge vores studieboliger, hvis du er studerende!
Dejlig 1-værelses studiebolig
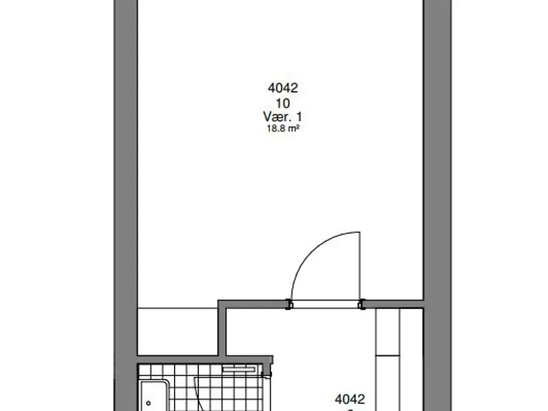
Studieboligen på Højmarken i Broager er på 33 m2, der er et værelse samt køkken og badeværelse.
Se en video fra en lignende bolig ved at klikke her
For at kunne søge studieboligen skal du kunne dokumentere, at du er studerende.
Hvis du ønsker at søge studieboligen, kan du kontakte vores Udlejning på tlf.: 74 42 57 95 (tast 1).
| Areal (brutto) | 33 m2 |
| Værelser | 1 |
| Husleje* | 2.856,78 kr. |
| Beboerindskud | 6.600,00 kr. |
| Ledig fra | Nu - udlejes efter aftale |
| Husdyr | Husdyr er ikke tilladt i studieboligerne |
*Huslejen er uden forbrugsafgifter (varme, el og vand)
Vær opmærksom på, at du - hvis du ønsker denne bolig - vil blive opkrævet en straksbetaling.
Straksbetalingen består af: Beboerindskud + første måneds husleje og acontobeløb til forbrug.
Boligen ligger i afdeling 74.
Plantegning og billeder fra Højmarken
Har kan du se plantegning, billeder fra Højmarken - og billeder af en studiebolig med samme indretning.