Til leje her og nu!
Degnegården 23 i Broager
Dette er en Her-og-nu bolig
Vores Her-og-nu boliger har ingen venteliste - du kan søge dem med det samme, og det betyder ikke noget, om du først lige er blevet medlem af B42. Her-og-nu boligerne bliver tildelt efter princippet om først-til-mølle: Den, der kontakter os først, bliver den nye lejer, uanset anciennitet.
3-værelses rækkehus med have
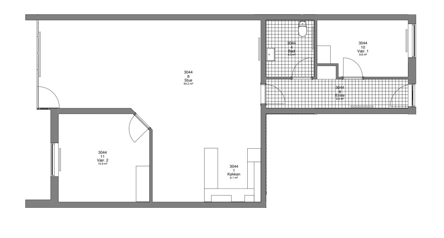
Rækkehuset på Degnegården ligger centralt i Broager og er indrettet med 2 værelser, badeværelse og stor stue i åben forbindelse med køkkenet. Der hører en mindre have til rækkehuset.
Hvis du ønsker at søge denne bolig, kan du kontakte vores Udlejning på tlf.: 74 42 57 95 (tast 1).
| Areal (brutto) | 111 m2 |
| Værelser | 3 |
| Have | Ja |
| Husleje* | 8.988,68 kr. |
| Beboerindskud | 29.217,00 kr. |
| Ledig fra | 19-03-2026 |
| Husdyr | Husdyr er tilladt, dog max en hund under 10 kg. eller en kat. |
*Huslejen er uden forbrugsafgifter (varme, el og vand)
Vær opmærksom på, at du - hvis du ønsker denne bolig - vil blive opkrævet en straksbetaling.
Straksbetalingen består af: Beboerindskud + første måneds husleje og acontobeløb til forbrug.
Boligen ligger i afdeling 36.
Plantegning af Degnegården 23
Har kan du se plantegning af rækkehuset samt billeder fra afdelingen.
Billeder fra rækkehuset kommer snart.