Til leje her og nu!
Seniorbolig - Æblehaven 5 i Egernsund
Dette er en Her-og-nu bolig - SENIORBOLIG
Vores Her-og-nu boliger har ingen venteliste - du kan søge dem med det samme, og det betyder ikke noget, om du først lige er blevet medlem af B42. Her-og-nu boligerne bliver tildelt efter princippet om først-til-mølle: Den, der kontakter os først, bliver den nye lejer, uanset anciennitet.
OBS: Dette er en seniorbolig - og det betyder, at du kun kan søge boligen, hvis du er fyldt 50 år.
Dejlig 2 værelses seniorbolig med have - midt i Egernsund
Rækkehuset i Æblehaven er en seniorbolig, som du kun kan søge, hvis du er fyldt 50 år.
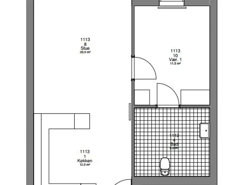
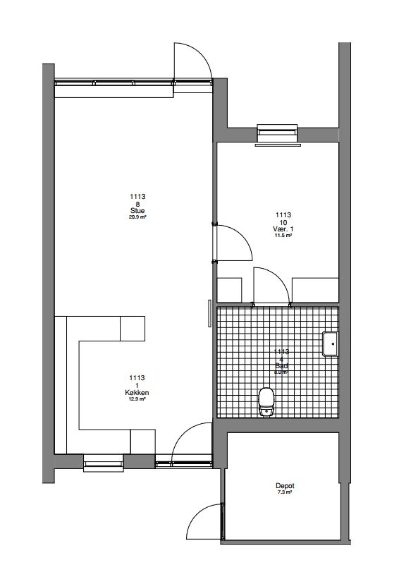
Rækkehuset ligger i rolige omgivelser og er indrettet med køkken i forlængelse af stuen, værelse med skabe og stort badeværelse. Fra stuen er der udgang til en lille have.
Hvis du ønsker at søge denne bolig, kan du kontakte vores Udlejning på tlf.: 74 42 57 95 (tast 1).
| Areal (brutto) | 65 m2 |
| Værelser | 2 |
| Have | Ja |
| Husleje* | 5.162,69 kr. |
| Beboerindskud | 16.240,00 kr. |
| Ledig fra | Efter aftale |
| Husdyr | Husdyr er tilladt, dog max en kat eller hund. |
*Huslejen er uden forbrugsafgifter (varme, el og vand)
Vær opmærksom på, at du - hvis du ønsker denne bolig - vil blive opkrævet en straksbetaling.
Straksbetalingen består af: Beboerindskud + første måneds husleje og acontobeløb til forbrug.
Boligen ligger i afdeling 80.
Plantegning og billeder fra Æblehaven
Billederne stammer fra en anden bolig i Æblehaven, hvor indretningen er spejlvendt i forhold til denne bolig.