Tilbage til hovedmenu Tilbage til footer

Til leje her og nu!

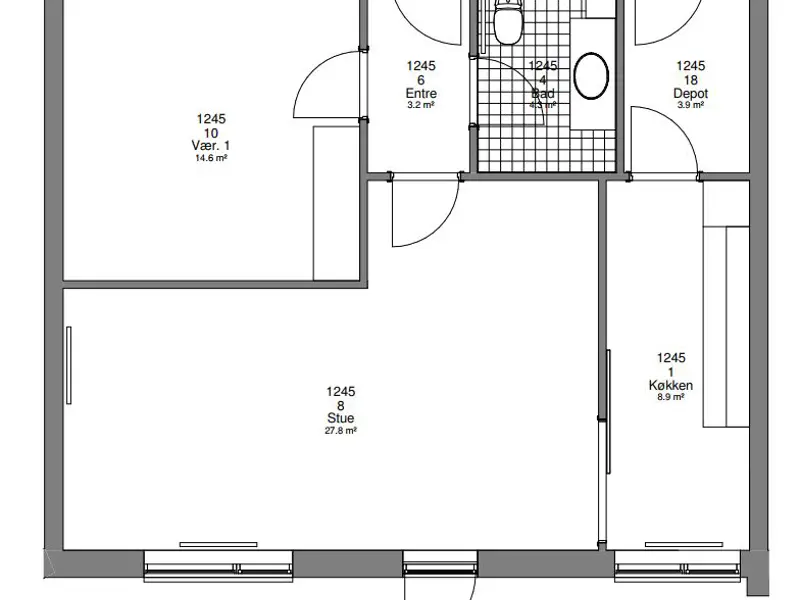
Runevænget 114 i Guderup, 6430 Nordborg

Dette er en Her-og-nu bolig

Vores Her-og-nu boliger har ingen venteliste - du kan søge dem med det samme, og det betyder ikke noget, om du først lige er blevet medlem af B42. Her-og-nu boligerne bliver tildelt efter princippet om først-til-mølle: Den, der kontakter os først, bliver den nye lejer, uanset anciennitet.

Velindrettet rækkehus med 3 rum og have i Guderup

 

Det rummelige rækkehus på Runevænget i Guderup er indrettet med entré, et stort soveværelse med indbyggede skabe, et mindre værelse samt en stor, lys stue i forbindelse med køkkenet. Fra stue/køkken er der udgang til haven. Derudover rummer rækkehuset et stort badeværelse samt et bryggers.

Hvis du ønsker at søge denne bolig, kan du kontakte vores Udlejning på tlf.: 74 42 57 95 (tast 1).

 

Areal (brutto) 85 m2
Værelser 3
Have Ja
Husleje* 6.946,36 kr. 
Beboerindskud 17.000,00 kr.
Ledig fra 14-11-2025
Husdyr Husdyr er tilladt, dog max en kat eller hund.

*Huslejen er uden forbrugsafgifter (varme, el og vand)

Vær opmærksom på, at du - hvis du ønsker denne bolig - vil blive opkrævet en straksbetaling.
Straksbetalingen består af: Beboerindskud + første måneds husleje og acontobeløb til forbrug.

Boligen ligger i afdeling 42.