Til leje her og nu!
Nejs Bjerg 22, 1.21- seniorbolig i Broager
Dette er en Her-og-nu bolig - SENIORBOLIG
Vores Her-og-nu boliger har ingen venteliste - du kan søge dem med det samme, og det betyder ikke noget, om du først lige er blevet medlem af B42. Her-og-nu boligerne bliver tildelt efter princippet om først-til-mølle: Den, der kontakter os først, bliver den nye lejer, uanset anciennitet.
OBS: Dette er en seniorbolig - og det betyder, at du kun kan søge boligen, hvis du er fyldt 50 år.
3-værelses lejlighed i godt seniorfællesskab i Broager
Se en video fra boligen ved at klikke her
Lejligheden på Nejs Bjerg i Broager er en del af bofællesskabet "Granly", målrettet seniorer over 50 år. Granly er den perfekte ramme for et aktivt seniorliv - her er fælleshus med både værksted, kondirum, opholdsrum og køkken, og har du besøg af familie og venner på besøg, kan de overnatte i fælleshusets gæsteværelser.
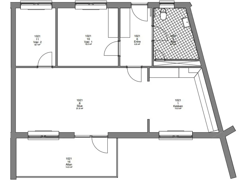
Den velindrettede lejlighed er på 106 m2, der er 3 værelser, stort badeværelser og en dejlig altan.
Hvis du ønsker at søge denne bolig, kan du kontakte vores Udlejning på tlf.: 74 42 57 95 (tast 1).
| Areal (brutto) | 106 m2 |
| Værelser | 3 |
| Etage | 1. sal |
| Altan | Ja |
| Elevator | Ja |
| Husleje* | 8.184,67 kr. |
| Beboerindskud | 21.750,00 kr. |
| Ledig fra | Efter aftale |
| Husdyr | Husdyr er tilladt, dog max en kat eller hund |
*Huslejen er uden forbrugsafgifter (varme, el og vand)
Vær opmærksom på, at du - hvis du ønsker denne bolig - vil blive opkrævet en straksbetaling.
Straksbetalingen består af: Beboerindskud + første måneds husleje og acontobeløb til forbrug.
Boligen ligger i afdeling 79.
Plantegning og billeder fra Nejs Bjerg